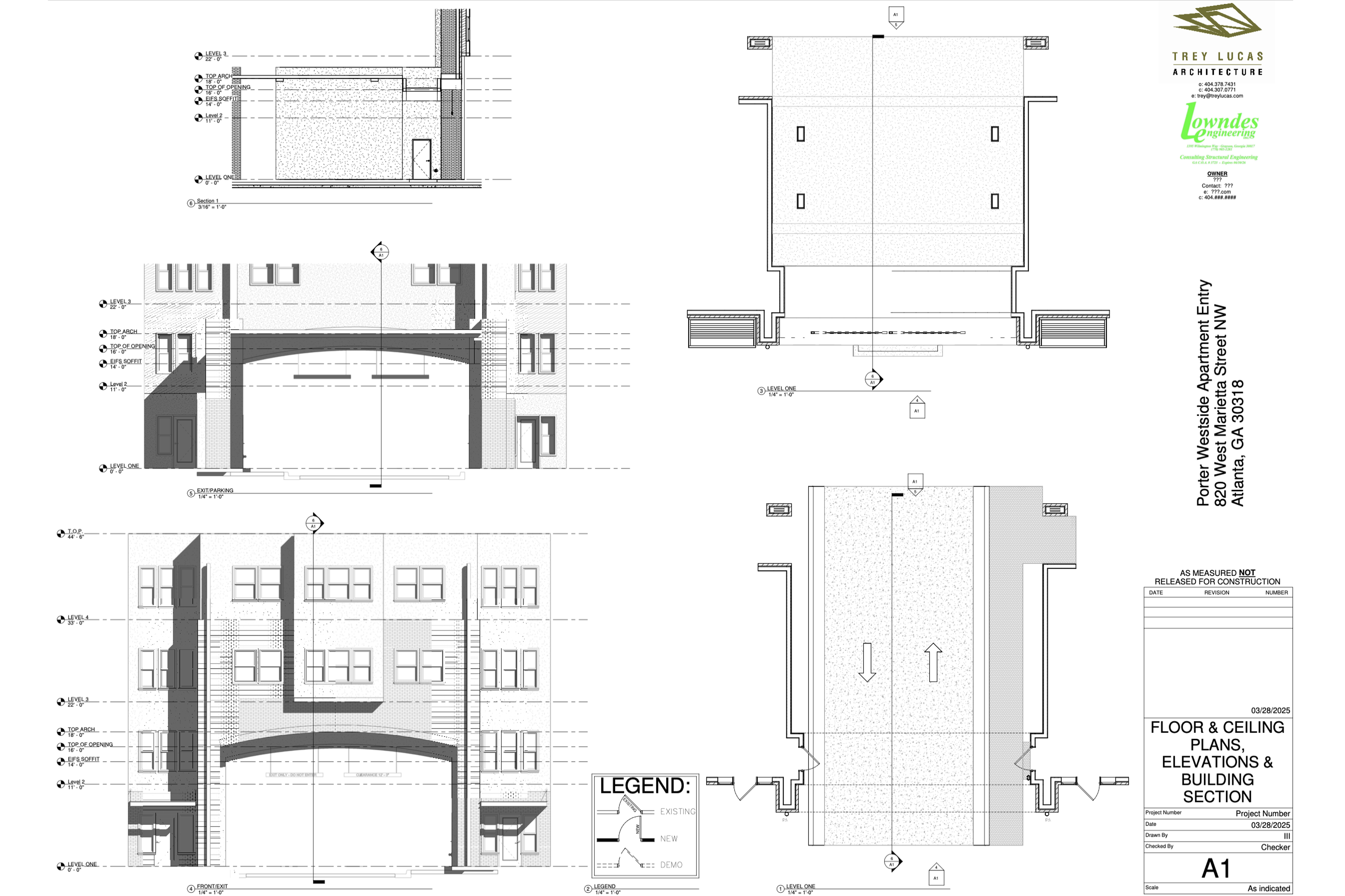
When STYL Residential approached us for signage at Porter Westside, the ask seemed straightforward. But once on-site in Atlanta, it became clear the need went far beyond some new channel letters. The main entrance — the first impression for residents and visitors alike — felt more like a service alley. There was no visual cue, no clarity, no welcome.
What followed was a much broader design response. The signage plan evolved into a full spatial rework, integrating landscape architecture, structural design, and brand narrative. One of the team's proudest contributions was reframing the problem itself: not simply adding signage, but reorienting how the building communicates identity and arrival.
Although the project was ultimately paused by the new property owner for financial reasons — and has yet to be fully implemented — the work stands as a testament to what can happen when a studio leads with solving business problems in partnership with its client.
Initially framed as a signage project, our early site visits revealed a larger issue: the property's main entrance didn't feel like an entrance at all. It looked and functioned like a service access point — missing the spatial and emotional signals that define a true front door.
We saw an opportunity to elevate perception, create a clearer sense of identity, and reframe how the building welcomes people.
While signage was the original deliverable, none of the early concepts truly addressed the root problem: the entrance simply didn't read as one. After proposing and discussing scope expansion, we redesigned the entire spatial sequence — leading visitors through a more welcoming, legible, and branded experience.
While the full design solution was completed, the project was ultimately paused by the new property owner due to financial constraints. Our understanding is that the projected cost of renovations no longer aligned with the investment goals for the asset.
This project sharpened our belief that even the smallest brief can uncover something deeper. We were reminded that site visits matter, intuition matters, and knowing when to zoom out is a core creative skill.
"MarkerHeads helped us see the bigger picture, and the design direction truly elevated what we imagined was possible."